Charter School Classroom and Performance Arts Building
Location: Riverside County, CA
Size: 26,000 SF
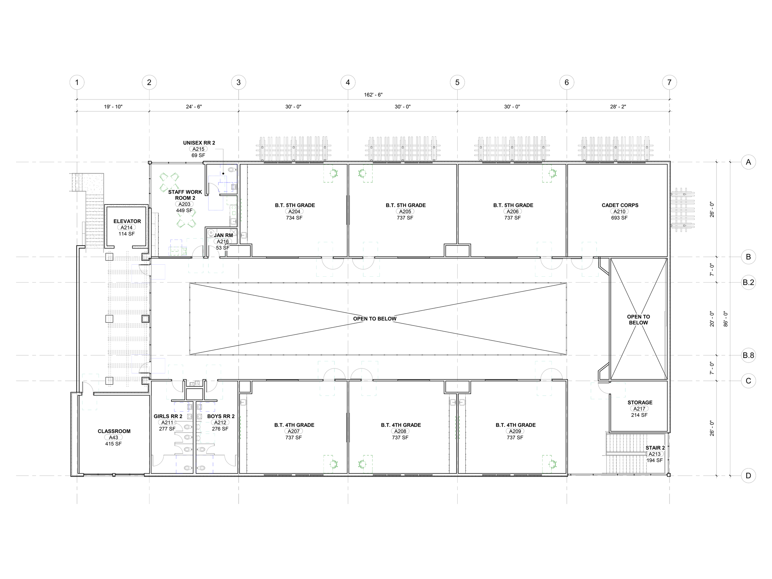
Satoh Brothers created designs for a new two-story, 26,000 square foot building on the last vacant parcel of land for a large K-12 charter school in Riverside. The building is designed in the Santa Barbara mission style, utilizing small arches, a bell tower, and a smooth plaster finish to match the aesthetic of the existing buildings on campus. In addition to (12) new classrooms, our design incorporates music and theater rooms with operable walls for room flexibility, and a large covered atrium in the center of the building complete with a stage for theater and music performances. The atrium ceiling is designed with clerestory windows to allow ample light and bring the feeling of volume into the interior of building.
Exterior Perspective View
Interior Perspective View
Perspective Sections
Section 1
Section 2
Floor Plans
First Floor Plan
Second Floor Plan
 
                         
                
                
               
                
                
               
                
                
               
                
                
              